2 Bay Single Storey Modular Building (MBS329)
Description
PURCHASE THIS BUILDING BEFORE IT COMES OFF SITE, FOR A SIGNIFICANT SAVING. CALL OUR NATIONAL SALES TEAM TO REGISTER YOUR INTEREST EARLY.
- Pre-owned excellent quality 2 Bay Modular Building
- 96.32m2
- Only 4 years old
- Exceptionally high quality structure including galvanised steel frame, composite plastisol roof and floors and composite Plastisol micro-rib claddingg
- Currently used as a WRVS cafe, this building can be easily customised to suit a wide range of uses
Please contact us to request email copies of larger versions of drawings, or alternatively request a full building pack on CD, including photos, drawings and full information.
Full turnkey packages available including planning, design, foundations/civils, delivery, installation and external services all
handled by our expert team.
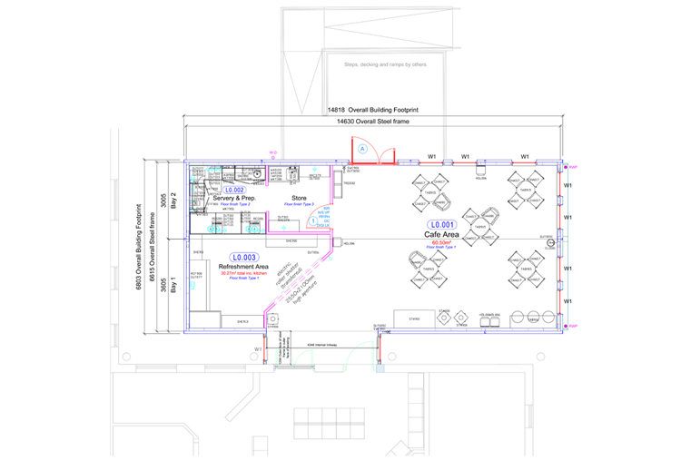
Technical Drawing

(Click to enlarge)

Floor Drawing
< Back to Stock List